Dreaming of an exclusive adult sanctuary,
or a stylish second-floor haven for your family?
Have you been putting it off because you are worried about the cost?
Addbuild’s Classic Series may be your solution.
Our Classic Series First Floor Additions can take you from concept-to-completion to cost-effectively add space, add style and add value to your home.
An Addbuild Classic first-floor addition to your home is more than just a home extension—it’s a seamless, high-quality solution that dramatically elevates your lifestyle and adds long-term value to your property.
Classic Master Retreat – 50m2 1-bedroom
Need a dedicated escape built just for you?
Classic Master Retreat is the ultimate sanctuary for modern homeowners. This stylish, expertly designed second-storey addition transforms your existing home into a haven of peace and privacy, delivering the exclusive space you’ve always desired. Or maybe it’s a space for members of your multi-generational home, or simply make it easy to have guests stay over. Whoever fills this space, it ensures greater privacy for the family unit.
This design focuses on elevating your lifestyle and appeal to your property. Imagine unwinding in your private zone, far removed from the hustle of the main household, while simultaneously adding substantial, aspirational value to your home.
What you get with the Classic Master Retreat:
- Exclusive Sanctuary: A large master suite, including a deluxe ensuite and walk-in robe.
- Lifestyle Enhancement: Dedicated zones for relaxation, such as a private sitting area, mezzanine, or study/library.
- Value Boost: A highly desirable feature that maximises resale value and buyer appeal.
Classic Master Retreat provides the perfect adult escape while significantly enhancing the overall luxury and desirability of your property.
Classic Essential Living - 68m2 3-Bedroom
Need practical, affordable space, fast?
Classic Essential Living is the smart, streamlined solution designed specifically to meet your family’s core needs.
This practical design focuses on maximising functional space and cost-efficiency, giving you a comfortable, dedicated three-bedroom upper level without the premium price tag of luxury inclusions. It’s the perfect way to address overcrowding, provide privacy for growing kids, or finally create that dedicated home office, all while significantly increasing your property’s square footage and future value.
What you get with the Classic Essential Living:
- Maximum Affordability: A simplified design process and standard specifications to keep your budget in check.
- Three Functional Bedrooms: Instant relief from overcrowding and room for the whole family.
- Focus on your needs: Practical layouts and durable, high-quality finishes designed for everyday family life.
Classic Essential Living delivers a fully functional addition that addresses your immediate need for space in the most cost-effective way possible.
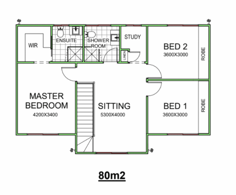
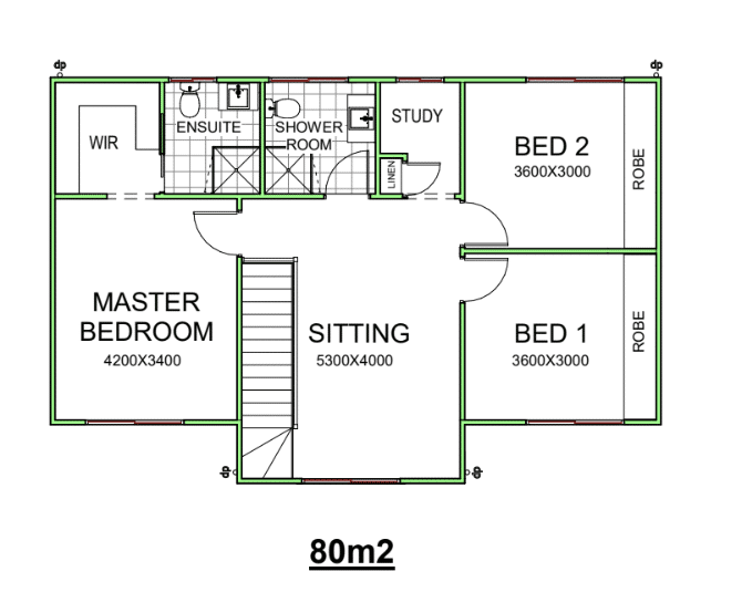
Classic Integrated Family - 80m2 3-Bedroom
Need a comprehensive space that seamlessly integrates with your family’s dynamic life?
Classic Integrated Family is the all-encompassing solution for growing families who require both practical utility and comfortable living.
This versatile multi-room design addition goes beyond basic bedrooms, focusing on creating cohesive zones for children, parents, study, and play. It is designed to be a thoughtful and balanced expansion that dramatically increases your usable living area, providing space for everyone to thrive without needing to relocate.
What you get with the Classic Integrated Family:
- Cohesive Design: Spacious Master Bedroom with a private toilet ensuite and a walk-in wardrobe, a separate shower room, 2 bedrooms with built-in wardrobes, a generous living area, and there’s even a study nook.
- Long-Term Growth: Designed to adapt as children mature, offering flexible spaces for different life stages.
- Maximised Functionality: Careful attention to storage solutions and flow to handle the demands of a busy family.
Classic Integrated Family delivers a thoughtful, well-balanced, and comprehensive addition that provides abundant space, enhances family functionality, and adds substantial appeal and value to your home.
Which Classic addition best aligns with your vision?
Everything on this page, formatted for easy reading. Download our PDF guide to explore our Classic Additions at your own pace.
Get in touch
For more information on Addbuild or any of our services, or to arrange a no-obligation free quote, please contact us via the details below.
New to renovating?
Addbuild has been helping Sydney’s growing families extend and renovate their homes for over 45 years.
Get in touch and we can point you to some excellent resources. Unpack some great ideas from our blog, download our free Consumer Guide or subscribe to our Home Alterations Masterclass, a free 10-part, in-depth guide to getting the most out of your home alterations.
A bit more advanced in your planning? Contact us for an obligation-free quote by one of our experienced design consultants
Everything on this page, formatted for easy reading. Download our PDF guide to explore our Classic Additions at your own pace.














